สำนักงาน
หมายเลขอสังหาริมทรัพย์: THA-P-001PK9สำนักงาน
พาร์ค สีลม
ถนนสีลม สีลม
บางรัก, กรุงเทพ
฿1,300 - ฿2,600 ต่อตร.ม.
- ขนาดพื้นที่74 - 2,048 ตร.ม.
- รายละเอียด
- รายละเอียดอสังหาริมทรัพย์
- ตำแหน่งที่ตั้ง
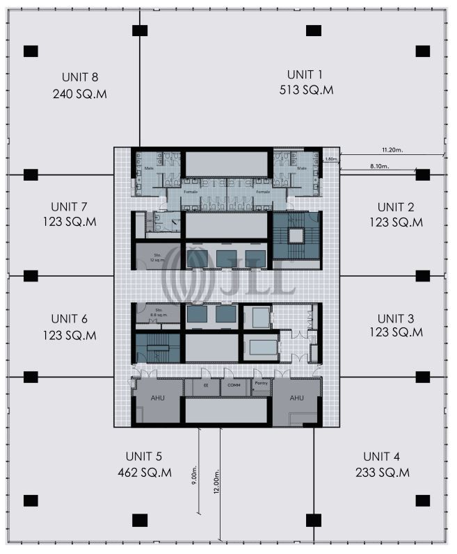
- แผนผังชั้น
- ติดต่อเรา
รายละเอียด
พาร์ค สีลม สำนักงานให้เช่าเกรด A สูง 39 ชั้น พื้นที่ให้เช่ารวม 65,000 ตรม. โดยแยกเป็นสำนักงาน พื้นที่ 56,000 ตรม. และพื้นที่ค้าปลีก 9,300 ตรม.
พาร์ค สีลม โครงการมิกซ์ยูสใหม่บนทำเลทอง เดินทางสะดวกสู่ถนนสีลม ถนนสาทร และถนนศาลาแดง รายล้อมด้วยเส้นทางคมนาคมเชื่อมต่อสำคัญทั้ง BTS และ MRT ร้านอาหาร ภัตตาคาร และร้านค้าต่างๆ
Park สีลมได้รับการแนะนำเป็นสีลมสแควร์โดยนาย เอสเตท และกลุ่มบริษัทไมเนอร์ การออกแบบและแนวคิดระดับนานาชาติ เช่น แผ่นพื้นไร้เสา หน้าต่างเต็มบาน ฝ้าเพดานสูง 3 เมตร ผสานเทคโนโลยีอัจฉริยะช่วยรักษาสิ่งแวดล้อม อาคารยกระดับไลฟ์สไตล์การทำงานด้วยพื้นที่ค้าปลีก 5 ชั้น พร้อมร้านค้าและบริการหลากหลายประเภททั้งในและต่างประเทศ
พาร์ค สีลม โครงการมิกซ์ยูสใหม่บนทำเลทอง เดินทางสะดวกสู่ถนนสีลม ถนนสาทร และถนนศาลาแดง รายล้อมด้วยเส้นทางคมนาคมเชื่อมต่อสำคัญทั้ง BTS และ MRT ร้านอาหาร ภัตตาคาร และร้านค้าต่างๆ
Park สีลมได้รับการแนะนำเป็นสีลมสแควร์โดยนาย เอสเตท และกลุ่มบริษัทไมเนอร์ การออกแบบและแนวคิดระดับนานาชาติ เช่น แผ่นพื้นไร้เสา หน้าต่างเต็มบาน ฝ้าเพดานสูง 3 เมตร ผสานเทคโนโลยีอัจฉริยะช่วยรักษาสิ่งแวดล้อม อาคารยกระดับไลฟ์สไตล์การทำงานด้วยพื้นที่ค้าปลีก 5 ชั้น พร้อมร้านค้าและบริการหลากหลายประเภททั้งในและต่างประเทศ

















