คลังสินค้าให้เช่า ที่อมตะ ซิตี้ (ชีวาไทย)
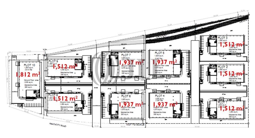
1,512 - 1,937 ตร.ม.
ค่าเช่า สามารถต่อรองได้
TH
+6626246400
ติดต่อเรา
พื้นที่สำนักงาน
เฟล็กสเปซ
บทวิเคราะห์
เกี่ยวกับ JLL
อสังหาริมทรัพย์ที่บันทึกไว้
TH
+6626246400
ติดต่อเรา
โรงงาน โกดัง/โลจิสติกส์
หมายเลขอสังหาริมทรัพย์:
THA-P-003TTL
โรงงาน โกดัง/โลจิสติกส์
6 รูปภาพ
2 แผนผังชั้น
คลังสินค้าให้เช่า ที่อมตะ ซิตี้ (ชีวาไทย)
นิคมอมตะ ซิตี้ ซอยพรประภา มาบยางพร
ปลวกแดง, ระยอง
฿220 ต่อตร.ม.
ขนาดพื้นที่
1,512 - 1,937 ตร.ม.
ติดต่อเรา
โทรหาเรา
แชร์
รายละเอียดอสังหาริมทรัพย์
ตำแหน่งที่ตั้ง
แผนผังชั้น
ติดต่อเรา
ตำแหน่งที่ตั้ง
แผนผังชั้น
โรงงาน โกดัง/โลจิสติกส์
RAYONG
ปลวกแดง
ระยอง
ปลวกแดง
21140
คลังสินค้าให้เช่า ที่อมตะ ซิตี้ (ชีวาไทย)